Nieuws 10-03-2015
Studio Plots is de grote winnaar van ontwerpselectie bij P/////AKT

Afgelopen vrijdag werden in kunstcentrum P/////AKT meer dan 20 ontwerpen van de beide rondes van de #JAPrijs 2014 door de ontwerpers gepresenteerd aan de nieuwe jury, bestaande uit Nienke Vijlbrief, Gerard Loozekoot en Herbert van der Brugghen.

Tijdens de lunchpauze vergaderde de jury over de keuze uit de ontwerpen voor een tijdelijke voorzetgevel die in de ochtendsessie werden gepresenteerd.

Drie plannen speelden bij die discussie een rol: van Sponge, het nieuwe collectief en > Studio Plots. Het laatste architectenbureau werd unaniem voorgedragen voor uitvoering met hun ontwerp 'Open deuren'.

Zie hier het plan > 'Open deuren' in pdf.

In de middagsessie kwamen de plannen voor vervangende nieuwbouw van het linkergedeelte van de P/////AKT-gebouwen aan de orde. De jury had aan het einde van de dag beduidend meer tijd nodig voor de keuze van een winnaar.

Vier ontwerpen speelden een rol in die eindfase: van Ron van Bakel, Tjeerd Bloothoofd, Sjoerd Tasseron en ook hier weer Studio Plots.

Tenslotte besloot de jury ook voor de nieuwbouw de beide ontwerpers van > Studio Plots (Monique Philippo en Jasper Tuinema - zie foto) op basis van hun plan 'Patio' als ontwerpend architect voor de vervolgfase voor te dragen.

Zie hier het plan > Patio in pdf.

We blijven de ontwikkeling van de ontwerpen uiteraard volgen en bedanken de juryleden hartelijk voor hun inzet. Tenslotte veel dank aan kunstcentrum P/////AKT (met name Gieneke Pieterse voor de heerlijke lunch) voor de gastvrijheid.

Nieuws 09-02-2015
Selectie winnende #JAPrijs plannen bij P/////AKT in Amsterdam

Op vrijdag 06 maart aanstaande zal een nieuwe jury uit de Top-10 inzendingen voor de 1e ronde (tijdelijke gevel) en de 2e ronde (nieuwbouwplan voor Zeeburgerpad 51) de architecten kiezen die vervolgens bij de realisatie worden betrokken.
Locatie van de bijeenkomst is de expositieruimte van P/////AKT aan het Zeeburgerpad 53, 1019 AB Amsterdam.

Alle (oud)deelnemers zijn natuurlijk van harte welkom! Bent u ook geïnteresseerd om de bijeenkomst bij te wonen? Mail > ons dan even om uw komst aan te kondigen.



^ Interieur van de expositieruimte van P/////AKT

De leden van de nieuwe jury voor deze tweede fase zijn:

Nienke Vijlbrief - voorzitter Stichting P/////AKT
Gerard Loozekoot - architect en partner UN-Studio
Herbert van der Brugghen - architect en initiator opgaven

Het programma voor vrijdag 06 maart 2015 kwam tot stand via loting.
De presentaties duren telkens precies vijf minuten, waarna de juryleden gedurende vijf minuten nadere vragen kunnen stellen.

Ochtend - Presentaties tijdelijke voorgevel
--------------------------------------------------------------------------------
- 09.30 uur - Inloop met koffie
- 10.00 uur - Opening door Kees van der Hoeven met uitleg procedure

- 10.10 uur - Start presentaties - 'Expose and revolve' - het nieuwe collectief
- 10.20 uur - 'Plastic Pakt' - Dingeman Deijs
- 10.30 uur - 'Pact Velcro' - Tjeerd Bloothoofd
- 10.40 uur - 'Point of View' - Chris Collaris
- 10.50 uur - 'Pakt Abstract' - Olaf Janson, Joost Maatkamp
- 11.00 uur - 'Waar sta je voor?' - Bjorn van Rheenen

- 11.10 uur - Korte pauze

- 11.25 uur - 'Ingepakt' - Michiel van der Veen, Matthijs de Kraker
- 11.35 uur - 'Open deuren' - Monique Philippo, Jasper Tuinema
- 11.45 uur - 'Zatoc' - Jos Harnischmacher
- 11.55 uur - 'Oblique' - Menno Voss, Niels van Ham
- 12.05 uur - 'I am a Gallery' - Hester Poortinga, Bob Zwinkels
- 12.15 uur - 'Renaissance van een Gevel' - Olivier van den Hoven
--------------------------------------------------------------------------------
- 12.25 uur - Juryberaad - Lunch, verzorgd door P/////AKT


Middag - Presentaties nieuwbouwplannen
--------------------------------------------------------------------------------
- 14.00 uur - Uitslag 1e ronde, bekendmaking architect tijdelijke gevel

- 14.10 uur - Start presentaties - 'Herpakt' - Dingeman Deijs
- 14.20 uur - 'Nine' - het nieuwe collectief
- 14.30 uur - 'Patio' - Monique Philippo, Jasper Tuinema
- 14.40 uur - 'Objet industrial' - Ron van Bakel
- 14.50 uur - 'Verlicht en doortrapt' - Sjoerd Tasseron

- 15.00 uur - Korte pauze

- 15.10 uur - 'De Kern van Kunst' - Ramon Scharff
- 15.20 uur - 'Pakt baut ein nieuw Haus' - George Klamer
- 15.30 uur - 'Domein 51' - Tjeerd Bloothoofd
- 15.40 uur - 'Pakt Fabriek' - Renzo Leegwater, Ron Vendrig
- 15.50 uur - 'The Sky is our Limit' - Chris Collaris
--------------------------------------------------------------------------------
- 16.00 uur - Juryberaad - Borrel verzorgd door P/////AKT
- 16.30 uur - Uitslag 2e ronde, bekendmaking architect nieuwbouwplan


Nieuws 19-12-2014
Tjeerd Bloothoofd wint Jonge Architecten Prijs 2014

Onze mediapartner Architectenweb deed vandaag al > verslag van de > uitslag van de 2e ronde en de prijsuitreiking van het > overall-klassement. Later hier uitgebreidere berichten met foto's van de middag in Amsterdam.

Tjeerd Bloothoofd met zijn oorkonde en geldprijs. Foto Rene van den Burg.

Nieuws 08-12-2014
Vrijdag 19 december - Expositie en prijsuitreiking 2e ronde #JAPrijs

Op vrijdagmiddag 19 december organiseren we weer de traditionele eindejaars bijeenkomst bij Mosa op IJburg: Mosa Architectural Center, Pedro Medinalaan 1a, 1086 XK Amsterdam (eerste tramhalte na witte toegangsbrug IJburg).
Ditmaal met de expositie van de 18 ontwerpen, de prijsuitreiking van de 2e ronde en de uitreiking van de Jonge Architecten Prijs en de Architect van het Jaar Prijs 2014.

Zie hieronder het programma
--------------------------------------------------------------------------------
- 16.00 uur - Inloop met een drankje bij Mosa (voorzijde gebouw)

- 16.30 uur - Welkomstwoord Kees van der Hoeven
- 16.40 uur - Toelichting jury op de beste plannen van de 2e ronde
- 17.00 uur - Prijsuitreiking 2e ronde en uitreiking #JAPrijs 2014

- 17.10 uur - Introductie door Eelco van Welie, directeur nai010 Publishers
- 17.15 uur - Toelichting 2e druk Double Dutch door auteur Bernard Hulsman

Aansluitend debat onder leiding van JaapJan Berg (redacteur NAi Jaarboek 2008-2012) met deelname van Bernard Hulsman, Hans Teerds, Stephan Petermann en natuurlijk de juryleden en architecten in de zaal.

- 18.10 uur - Toelichting jury op selectie Architect van het Jaar
- 18.20 uur - Uitreiking Architect van het Jaar Prijs 2014

Aansluitend drinks & bites bij Mosa. --------------------------------------------------------------------------------
Alle (oud)deelnemers zijn natuurlijk van harte welkom! Bent u ook geïnteresseerd om de bijeenkomst bij te wonen? Mail > ons dan even om uw komst aan te kondigen.

Nieuws 03-11-2014
Antwoorden op de laatste vragenronde - #JAPrijs 2014

Er zijn 32 vragen gesteld over de opgave van de tweede ronde.
Hier de > antwoorden plus de visie van de > buurt op de ontwikkeling van het Zeeburgerpad in pdf-formaat.
Op verzoek van velen is de inzendtermijn een week verschoven naar:
maandag 24 november 2014 (voor 12.00 's-middags).

Nieuws 21-10-2014
Opgave tweede ronde #JAPrijs 2014: Vernieuwing Zeeburgerpad 51

Kunstcentrum > P/////AKT bevindt zich in twee panden, die ruim tien jaar geleden door woningcorporatie Stadgenoot zijn gekocht van schildersbedrijf Dirkzwager. Sinds 2003 zijn er naast de expositieruimte van P/////AKT - mede in het kader van het broedplaats beleid van de gemeente - ook veertien creatieve ondernemers gehuisvest. Verder zijn er een 'Artist in Residency'-plek en twee verhuurde woningen. Was P/////AKT tot nu alleen de beheerder en grootste gebruiker van de panden, binnenkort wordt de stichting ook eigenaar van de panden Zeeburgerpad 51 en 53.
(scroll down voor meer foto's en tekeningen - ook op schaal in pdf-formaat).



^ Voorgevel Zeeburgerpad 51 en 53 (entree expositieruimte)

In de eerste ronde vroegen we een ontwerp voor een tijdelijke (voorzet)gevel en een nieuwe entree. Daarbij ging het vooral om vergroting van zichtbaarheid, herkenbaarheid en toegankelijkheid. Het linker gedeelte van het complex (pand Zeeburgerpad 51) is echter in slechte bouwkundige staat. Daarom wil P/////AKT in deze ronde onderzoeken wat daar de mogelijkheden zijn voor vervangende nieuwbouw. Dat nieuwe gebouw moet ruimte bieden aan uitbreiding van de expositieruimte, vergroting van het aantal ateliers, mogelijk extra artist-in-residence-plekken en uitbreiding van voorzieningen voor de organisatie van P/////AKT.

Het beknopte programma van eisen
- Begane grond
Expositieruimte a 120 m2,
(van belang is ook een mogelijke aansluiting op de bestaande expositieruimte).
Afsluitbare bar met bescheiden kookmogelijkheden (oven, kookplaat, voldoende koelkasten, afwasmachine en afzuiging).
Kantoortje voor P////AKT a 20 m2,
Twee atelierruimtes a 30m2,
Toiletgroep (dames en heren),
Entree met trap naar atelierruimtes op de eerste etage,
Aparte entree met trap naar de woningen op de tweede etage,
Technische ruimte pm.
Op de begane grond komt in ieder geval een doorbraak naar het aangrenzende gebouw nr 53 ter plaatse van de huidige keuken.

- Eerste etage
Zes of zeven atelierruimtes in wisselende grootte a 25 tot 60 m2,
Vergaderruimte voor algemeen gebruik a 25 m2,
Toiletgroep (dames en heren),
Pantry,
Technische ruimte pm.
Op de eerste etage komt in ieder geval een doorbraak naar het aangrenzende pand nr 53 ter plaatste van de gang.

- Tweede etage
Twee a drie bescheiden atelierwoningen, elk ongeveer 80 m2 met een ruime woonkamer en twee kleinere kamers als atelier en/of slaapkamer. Verder met keuken, wc, douche, cv-kast/technische ruimte en berging.
Een a twee artist-in-residency-plekken, elk ongeveer 50 m2, met wc en pantry, ingedeeld als loft. Bereikbaar vanuit het trappenhuis dat de andere atelierruimte op de etage ontsluit.

Aanvullend
De verdiepingshoogte van de begane grond moet ongeveer 4.00 meter zijn, zodat het vloerniveau gelijk is aan Zeeburgerpad 53. De verdiepingshoogte van de eerste en tweede verdieping is dan ongeveer 3.60 meter. Het is verder niet noodzakelijk om het volledige grondoppervlak vol te bouwen en het lijkt mogelijk om bijvoorbeeld een bijzondere dakvorm toe te passen. Het is wel belangrijk om de doorbraken te maken op de plaatsen zoals aangegeven, zodat er een goede aansluiting ontstaat zonder dat er grote wijzigingen hoeven te worden doorgevoerd in Zeeburgerpad 53.

P//////AKT is een broedplaats en biedt kunstenaars en beginnende creatieve ondernemers de mogelijkheid om voor een relatief laag bedrag een atelier te huren. Het afwerkingsniveau van de ruimtes kan dan ook bescheiden zijn. In het verlengde daarvan wordt ook voor de buitenzijde van het gebouw aan een vergelijkbare bescheiden uitstraling gedacht. Tenslotte leert de ervaring dat je in een pand als dit nooit genoeg bergruimte kunt hebben. Hoewel niet telkens expliciet vermeld, kunnen restruimtes goed als berging worden gebruikt.

Stedelijk-ruimtelijk
Het Zeeburgerpad heeft een industrieel karakter, geen stoep en de breedte van de percelen is telkens verschillend. Het gebied oogt daardoor 'rommelig' en dat beeld willen we graag behouden. Het is voor P/////AKT interessant om straks te zien hoe wordt omgegaan met de verschillende entrees en de herkenbaarheid. Het heeft onze voorkeur wanner de nieuwe expositieruimte zowel vanaf de straat als vanaf de vaart herkenbaar is. Volgens het huidige stedenbouwkundig kader is de max bouwhoogte 12 m. P/////AKT wil vooralsnog niet verder gaan drie bouwlagen, maar het is denkbaar plaatselijk hoger te gaan, bijvoorbeeld met een kap of extra zolderruimte.

Recent is het vernieuwde bestemmingsplan voor dit deel van het Zeeburgerpad door de Raad van State nietig verklaard. Het Zeeburgerpad heeft een zeer actieve buurtgroep en het stadsdeel werkt nu aan bestemmingsplan waarbij deze groep meer inspraak krijgt. Er is reeds een aantal randvoorwaarden opgesteld door de buurt, deze staan in hun manifest (binnenkort ook hier te lezen). Als lid van deze buurtgroep wil P////AKT graag dat het plan op hoofdlijnen voldoet aan deze eisen. De nieuwbouwplannen voor Zeeburgerpad 51 zullen worden gepresenteerd aan het stadsdeel en kunnen dienen als voorbeeld voor andere initiatiefnemers.

Vervolg
Net als na de eerste ronde van de #JAPrijs 2014 komt er eenzelfde vervolgtraject waarin de door onze eigen jury geselecteerde beste tien plannen, eventueel aangevuld met max. twee wildcards, aan de eigen jury van P/////AKT worden gepresenteerd. Vervolgens kiest die jury max. drie plannen die verder worden uitgewerkt, waarna een winnaar wordt aangewezen.
P/////AKT heeft de intentie om het winnende plan te realiseren, maar er is nu nog geen bouwbudget. Het winnende plan wordt in eerste instantie gebruikt voor het enthousiasmeren van een of meer investeerders. Als dat slaagt, wordt het ontwerp gezamenlijk verder ontwikkeld en uitgevoerd. De verwachting is dat dit een proces van lange adem wordt, een dergelijk traject duurt gemiddeld zeven jaar.

Resumerend is de opgave voor de 2e ronde van de #JAPrijs 2014:
Ontwerp vervangende nieuwbouw voor Zeeburgerpad 51, Amsterdam.

Het is mogelijk om nog vragen te stellen naar aanleiding van de opgave. Stel de vragen per mail aan info[at]architectenwerk.nl. De vragenronde sluit op dinsdag 28 oktober 2014, we plaatsen de antwoorden maandag 03 november 2014 in pdf op de website.

Inzenden
- 1. Presenteer het ontwerp op maximaal 2 tekeningen op liggend A3-formaat. Plattegronden, doorsneden, aanzichten (schaal 1:200 of groter) en een perspectief van exterieur en interieur maken onderdeel uit van de presentatie. Materialisering en detaillering zijn vrij, maar worden waar nuttig vermeld.
- 2. Bedenk een motto (in letters en/of cijfers) voor je inzending en vermeld dat duidelijk zichtbaar op beide tekeningen. Zorg ervoor dat de tekeningen geen herleidbare informatie naar persoon of bureau bevatten. Toelichtende tekst max. 200 woorden.
- 3. Maak een pdf (maximaal 3 Mb) van de twee A3-tekeningen en zend deze - vóór of op maandag 24 november 2014 (vóór 12.00 u = middaguur) - per mail aan info[at]architectenwerk.nl.
- 4. Stuur vervolgens per post een gesloten enveloppe (met aan de buitenzijde alleen het motto) naar ArchitectenWerk, Postbus 2129, 2240 CC Wassenaar. Met daarin een ondertekende verklaring dat het ontwerp jouw geestelijk eigendom is, met tevens vermelding van je naam, geboortedatum, postadres, e-mailadres plus het studie-nr. van je opleiding of je registratie-nr. bij het > Architectenregister.

Voorwaarden voor deelname
Deelname aan de 2e ronde van de Jonge Architecten Prijs 2014 staat open voor master-studenten architectuur (ook interieurarchitectuur) en voor jonge architecten (ook interieurarchitecten) tot 40 jaar (peildatum leeftijd: 01 januari 2014). Als je reeds bent ingeschreven voor het hele seizoen 2014 hoef je niets bijzonders meer te doen.

Ben je nog niet ingeschreven, dan kun je dat doen tot en met maandag 24 november 2014 door de bijdrage in de organisatiekosten voor de 2e ronde van € 30,- over te maken op bankrekening - NL44 ABNA 0867 5421 60 - ten name van ArchitectenWerk te Wassenaar. Met vermelding van je volledige naam, je e-mailadres en/of telefoonnummer (voor eventueel nader contact). Als je daar prijs op stelt sturen we je per e-mail een btw-factuur voor het gekozen bedrag in pdf-formaat; vermeld dan tevens het woord 'factuur' bij je betaling).

Nieuws 20-10-2014
Dingeman Deijs Architect winnaar van 1e ronde #JAPrijs

Afgelopen vrijdag is in Amsterdam de expositie van de eerste ronde van de #JAPrijs 2014 geopend en werden de vier prijzen met bijbehorende oorkondes uitgereikt.

Jurylid Pepijn Bakker lichtte de keuze voor de beste tien (door ex-aequo situaties nu elf) plannen nader toe. De totaaluitslag van deze eerste ronde is > hier te vinden.

Verder verzorgde architecte Jane Hall van Assemble Studio uit Londen een lezing over de geschiedenis en de projecten van dit bijzondere collectief van jonge architecten.

Onderstaand de winnende plannen van de 1e ronde met een link naar de inzending:



^ De eerste prijs (30,5 punt) voor > Plastic Pakt van Dingeman Deijs Architect, Amsterdam



^ De tweede prijs (30,0 punt) voor > Pact Velcro van Bloot Architecture, Den Haag



^ Een derde prijs (29,5 punt) voor > Renaissance van een gevel van Olivier van den Hoven, Rotterdam



^ Tenslotte een derde prijs (29,5 punt) voor > Expose and Revolve van HetNieuweCollectief, Rotterdam

Op een nader te bepalen dag in november worden de beste elf plannen van deze ronde (via de wild-card van kunstcentrum P/////AKT nog aangevuld met de inzending van Sponge Architects) door de ontwerpers gepresenteerd aan een nieuwe jury samengesteld door P/////AKT, waarna max. 3 plannen worden gekozen voor nadere uitwerking.

De middag werd afgesloten met een geanimeerde borrel bij Mosa.

Nieuws 01-10-2014
Vrijdag 17 oktober - Expositie en prijsuitreiking 1e ronde #JAPrijs

ArchitectenWerk organiseert de tentoonstelling van 24 ontwerpen voor een tijdelijke gevel van kunstcentrum P/////AKT die zijn ingezonden door in totaal 36 deelnemers.
Ingang bij het Mosa Architectural Centre aan de Pedro Medinalaan 1a - 1086 XK Amsterdam IJburg (1e gebouw aan uw rechterhand na de witte brug op IJburg).

Zie hieronder het programma op die vrijdagmiddag 17-10-2014:
--------------------------------------------------------------------------------
- 16.00 uur - inloop via ingang van Mosa (voorzijde gebouw)

- 16.30 uur - welkomstwoord en toelichting op vervolg en opgave 2e ronde
- 16.40 uur - introductie van de beste 10 plannen door de jury
- 17.00 uur - lezing architecte Jane Hall over > Assemble Studio uit Londen *
- 17.30 uur - prijsuitreiking van de 1e ronde

- 17.40 uur - drinks & bites in het Mosa Architectural Centre
--------------------------------------------------------------------------------
(* lezing mede dankzij onze nieuwe sponsor > Bouwformatie magazine!)
U bent van harte welkom om deze middag als onze gast bij te wonen. Wel is het belangrijk om even per > mail te horen met hoeveel mensen u wilt komen.
Tot slot hier nog de > uitnodiging in pdf-formaat.



^ Assemble Studio London

Nieuws 17-08-2014
Antwoorden op de vragenronde - Jonge Architecten Prijs 2014

Er is een aantal vragen gesteld over de opgave van de eerste ronde.
Hier de > antwoorden in pdf-formaat.
Vergeet de uiterste inzenddatum niet: maandag 08 september 2014.

Nieuws 14-07-2014
Start nieuw seizoen - Jonge Architecten Prijs 2014

Na een geslaagd vorig seizoen > 2013 - met overall winnaars van het eindklassement AttB > Atelier tot the Bone en met na de 2e ronde in Nieuwleusen een bouwopdracht voor architecten > Arjan de Nooijer en > Bram Zondag - gaat de Jonge Architecten Prijs 2014 van start. De catalogus 2013 verschijnt binnenkort.

Ondanks de wederom kleinere sponsorbijdrage kunnen we de vaste opzet handhaven. Met opnieuw twee prijsvraagrondes (met exposities en publicatie van alle inzendingen) en een geldprijs voor de winnaar van het eindklassement van € 2.500,-.

Georganiseerd door ArchitectenWerk, mede gesteund door de Bond van Nederlandse Architecten > BNA en Alcoa > Architectuursystemen en met support in productie van het Mosa > Architectural Ceramics Centre en Rijnja > Repro. We staan uiteraard open voor steun door anderen, zie onderaan deze pagina voor de mogelijkheden.

Deelname en inschrijving
Deelname aan de Jonge Architecten Prijs 2014 staat open voor master-studenten architectuur en interieurarchitectuur en voor jonge architecten en interieurarchitecten tot 40 jaar (peildatum leeftijd: 01 januari 2014).
Bijdrage deelnemers voor beide rondes € 50,- of per ronde € 30,- (incl.btw);

Inschrijven is mogelijk tot en met maandag 08 september 2014 door de bijdrage in de organisatiekosten over te maken op bankrekening - NL44 ABNA 0867 5421 60 - ten name van ArchitectenWerk te Wassenaar. Met vermelding van je volledige naam, je e-mailadres en/of telefoonnummer (voor eventueel nader contact).
Als je daar prijs op stelt sturen we je per e-mail een btw-factuur voor het gekozen bedrag in pdf-formaat; vermeld dan tevens het woord factuur bij je betaling.

N.B.: Architecten van 40 jaar of ouder kunnen toch meedoen en hun krachten meten met de jongeren... Zij kunnen geen geld, maar roem en eer verwerven: voor hen is er het speciale 'Veteranenklassement'. Deelnamekosten oudere architecten en interieurarchitecten: voor beide rondes € 100,- of per ronde € 60,-.

Samenwerking bij realiseerbare ontwerpopgave voor 1e ronde
Op zoek naar een interessante opgave voor de eerste ronde kwamen we op initiatief van architect > Herbert van der Brugghen in contact met Gieneke Pieterse, zakelijk leider van > P/////AKT - Platform for Contemporary Art - in Amsterdam. Hun werk- en expositieruimte is gevestigd in een voormalig bedrijfsgebouw aan het Zeeburgerpad in het Oostelijk Havengebied. Het pand is inmiddels toe aan een architectonische vernieuwing die beter aansluit bij het karakter en de visie van P/////AKT.
In overleg lukte het om een eerste opgave te formuleren die ook tot realisatie kan leiden: het ontwerp van een tijdelijke (voorzet)gevel en een nieuwe entree.



^ Het Oostelijk Havengebied in Amsterdam


Volg hier straks de jury
> 1e ronde (oktober)
> 2e ronde (december)
> eindklassement (dec)


Info over de sponsors



> Alcoa Arch.systemen


> BNA


> Mosa Tiles


> Rijnja Projects


> Bouwformatie magazine



> nai010 publishers

> ArchitectenWerk


Mediapartner



> Architectenweb


Vorige seizoenen
JA Prijs > 2013
JA Prijs > 2012

Toelichting op doel en activiteiten
P/////AKT is een > platform voor hedendaagse beeldende kunst en organiseert grootschalige solotentoonstellingen waarbij het publiek zich in de denkruimte van de kunstenaar kan verdiepen.

P/////AKT stelt de kunstenaar centraal en biedt daarbij ruimte aan uitzonderlijk en zich ontwikkelend talent dat zich onderscheidt door een unieke en eigenzinnige taal en daarmee een andere visie op het huidige denken verbeeldt. Deze kunstenaars krijgen de gelegenheid om te experimenteren en om nieuwe ontwikkelingen in hun oeuvre aan een relevant publiek te presenteren. Naast het basisprogramma biedt P////AKT ruimte aan (korte) gastprojecten. Het is daarbij van belang dat het initiatief van jonge kunstenaars aan bod komt. Naast een presentatie-instelling is zij een broedplaats.



^ Interieur van de expositieruimte van P/////AKT

Toelichting op locatie en omgeving
Het gebouw waarin P//////AKT is gevestigd bevindt zich aan het Zeeburgerpad. Deze straat in Amsterdam Oost heeft als belangrijkste kenmerk, dat het een langgerekte, smalle strook land is (tussen twee kanalen in) met slechts aan één kant van de straat bebouwing. In het gebied bevinden zich momenteel veel kleine en middelgrote bedrijven, vaker gecombineerd met bedrijfswoningen. Het Zeeburgerpad kent een industrieel karakter, geen trottoir en veel verschillende perceelbreedtes. Het gebied oogt daardoor 'rommelig' en het wordt wenselijk geacht om dat beeld te behouden.



^ Het dubbele pand van boven gezien



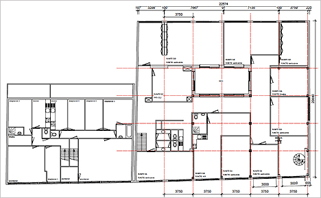
^ Tekening van de begane grond (download > hier de pdf op schaal)

Toelichting op gebouw en uitstraling
P/////AKT bevindt zich in twee panden die in 2003 door woningcorporatie Stadgenoot zijn overgenomen van schildersbedrijf Dirkzwager. In die tijd bevond zich in het rechter gebouwdeel op de begane grond het magazijn met daarboven het kantoor, in het linker gebouwdeel zat de ontvangstruimte voor klanten met een tweetal dienstwoningen daarboven. Door het ooit aanbrengen van trespa-beplating is een gevelbeeld ontstaan dat probeert te ontkennen dat er sprake is van twee gebouwen.

Sinds 2003 zijn er - in het kader van het broedplaatsenbeleid van de gemeente Amsterdam - naast de expositieruimte ook werkruimten voor 14 creatieve ondernemers in het pand gehuisvest. Ten slotte is er een werkplek voor een Artist-in Residence en de al eerder genoemde twee woningen. Dit gedifferentieerde gebruik komt op dit moment niet tot uitdrukking in het actuele beeld van de voorgevel.



^ Voorgevel Zeeburgerpad 51 en 53 (entree expositieruimte)



^ Tekening van de etage (download > hier de pdf op schaal)

Stapsgewijze aanpak verbeteringen
Momenteel wordt de uitstraling van de tentoonstellingsruimte verbeterd en worden de aangrenzende bezoekersruimtes comfortabeler ingericht. Recent is de gevel schoongemaakt en is de begane grond aan de buitenzijde geschilderd.
Nu wil P//////AKT de gevel graag een nieuw karakter geven, door eventueel de trespa gevelbekleding te vervangen en de entree te vernieuwen. Hierdoor kunnen de zichtbaarheid, herkenbaarheid en toegankelijkheid nog verder worden vergroot.



^ Voorgevel en buitenhoek Zeeburgerpad 53 (entree expositieruimte)

De ontwerpopgave voor nu
De opgave betreft het ontwerp van een tijdelijke (voorzet)gevel en een nieuwe entree. De nieuwe gevel, die de meervoudige functie en vooral het experimentele karakter (van het gebouw) van P/////AKT weergeeft, moet onderhoudsarm zijn en gebruik maken van de bestaande structuur, ook omdat er geen budget is om bouwkundige elementen als de kozijnen te vervangen.
De nieuwe entree moet ervoor zorgen dat P/////AKT beter zichtbaar is vanaf de straat, ook tijdens de uren dat de expositieruimte gesloten is. Ten slotte moeten de gevel en/of de nieuwe entree de mogelijkheid bieden om op een goedkope manier het expositie-programma te kunnen adverteren.



^ Tekening voorgevel (download > hier de pdf van voorgevel en doorsnede op schaal)



^ Tekening dwarsdoorsnede (downloaden hierboven)

Laatste overweging
Het braakliggende perceel direct naast P/////AKT grenst aan de relatief drukke Veelaan maar is van een andere eigenaar. Deze heeft voor dit kavel een vergunning verkregen voor de bouw van een bedrijfsverzamelgebouw. Het is echter nog onduidelijk wanneer de bouwwerkzaamheden daar zullen starten. Het kan dus zeker voor het publieksbereik interessant zijn om ook de zijgevel van het gebouw van P/////AKT in het ontwerp te betrekken. Het is wel belangrijk dat het ontwerp ook zonder dit deel 'compleet' is.



^ Zijgevel naast braakliggend bouwkavel

Vervolgfase eerste ronde
De ontwerpen voor deze ronde worden eerst beoordeeld door onze eigen jury. De ontwerpers uit de top-10 van het klassement krijgen na de uitslag de gelegenheid om hun ontwerp - ieder in 5 minuten - te presenteren aan een nieuwe jury die door P/////AKT wordt samengesteld. De organisatie van P/////AKT kan daarnaast uit de inzendingen zelf nog twee ontwerpen aan deze lijst van 10 toevoegen. De nieuwe jury kiest (uit de dan maximaal 12) vervolgens twee tot drie plannen die in een aantal weken nader mogen worden uitgewerkt. Na een nieuwe presentatie van die uitgewerkte ontwerpen kiest deze jury een architect voor uitvoering van de opdracht.



^ Achtergevel aan het water

Resumerend zoekt de 1e ronde van de Jonge Architecten Prijs 2014 naar:

Het ontwerp voor een onderhoudsarme tijdelijke (voorzet)gevel en een nieuwe entree voor het gebouw van P/////AKT - platform voor hedendaagse beeldende kunst - aan het Zeeburgerpad 53 te Amsterdam. Het ontwerp maakt P/////AKT beter toegankelijk, naar buiten toe beter zichtbaar en biedt tevens mogelijkheden om het expositie-programma te adverteren.

Het is mogelijk om nog vragen te stellen naar aanleiding van de opgave. Stel de vragen per mail aan info[at]architectenwerk.nl. De vragenronde sluit op vrijdag 08 augustus 2014, we plaatsen de antwoorden maandag 18 augustus in pdf op de website.

Voorwaarden voor inzending
Check of je ingeschreven bent. En volg daarna onderstaande stappen:

- 1. Presenteer de ontwerpen op maximaal 2 tekeningen op liggend A3-formaat. De eerste A3 bevat in ieder geval het voorste deel van de plattegrond van de begane grond met de nieuwe entree, een tekening van de nieuwe (voorzet)gevel en één of twee doorsnedes op schaal 1:100. De aanvullende documentatie van het ontwerp op de tweede A3 is vrij, hoewel een enkel driedimensionaal beeld (van de nieuwe gevel en/of de entree) eigenlijk niet zou mogen ontbreken. Materialisering en detaillering zijn eveneens vrij, maar worden - waar nuttig - vermeld.

- 2. Bedenk een motto (in letters en/of cijfers) voor je inzending en vermeld dat duidelijk zichtbaar op beide tekeningen. Zorg ervoor dat de tekeningen geen herleidbare informatie naar persoon of bureau bevatten. Toelichtende tekst max. 200 woorden.

- 3. Maak een gecombineerde pdf (maximaal 3 Mb) van de twee A3-tekeningen en zend deze - vóór of op maandag 08 september 2014 (vóór 12.00 u = middaguur) - per mail aan info[at]architectenwerk.nl.

- 4. Stuur ten slotte per post een gesloten enveloppe (met aan de buitenzijde alleen het motto) naar ArchitectenWerk, Postbus 2129, 2240 CC Wassenaar. Met daarin een ondertekende verklaring dat het ontwerp jouw geestelijk eigendom is, met tevens vermelding van je naam, geboortedatum, postadres, e-mailadres plus het studie-nr. van je opleiding of je registratie-nr. bij het > Architectenregister.

De nieuwe jury voor het seizoen 2014
De juryleden zullen (per ronde en ieder van achter hun eigen computer) alle pdf-inzendingen integraal bekijken en elk ontwerp voorzien van een cijfer van 1-10 aangevuld met kort commentaar in de vorm van enkele trefwoorden.
De jurycijfers worden per inzending bij elkaar geteld en zo komt per ronde het (tussen)klassement tot stand. Over de precieze rangorde binnen dit klassement kan de jury aansluitend nog nader overleg voeren.

De uitslagen van de twee rondes worden per inzender bij elkaar geteld tot een nieuw klassement; de Jonge Architecten Prijs 2014 is voor degene die in die lijst de hoogste totaalscore heeft behaald. De vier juryleden zijn achtereenvolgens:


Pepijn Bakker
Pepijn Bakker > (1981) studeerde architectuur en planning aan de Technische Universiteit in Eindhoven en behaalde begin 2009 zijn diploma (cum laude).
Na vijf jaar werkervaring bij verschillende architectenbureaus, waaronder MVRDV en Koen van Velsen, organiseert hij sinds 2013 het kennisuitwisselingsprogramma van architectenbranchevereniging > BNA, daarnaast doceert hij aan de TU Delft en Summer School > 'Thinking city'. Ten slotte schrijft hij over actuele ontwikkelingen binnen de Nederlandse bouwpraktijk voor verschillende vakbladen en > blogs.

Sascha Glasl
Sascha Glasl > (1977, Frechen - D) studeerde in 2007 cum laude af aan de RWTH in Aken en startte in 2009 samen met Tjeerd Haccou en Marthijn Pool het architectenbureau > space&matter. Hun werk ontving verschillende prijzen en werd (inter)nationaal gepubliceerd en tentoongesteld. Ze werken aan bijzondere projecten die ze vaak zelf initiëren, zoals Schoonschip, Sweets, UrbanFarmers, Crowdbuilding en WeBuildHomes. Verder is Glasl initiatiefnemer van > De Ceuvel en ten slotte is hij als docent verbonden aan de leerstoel typologieën en ontwerp van de RWTH in Aken.

Hans Hammink
Hans Hammink > (1962) was tijdens zijn studie architectuur aan de TU Delft een van de winnaars van de prijsvraag 'Tijdelijk Wonen'. Hij bouwde eigenhandig zijn winnende ontwerp in Almere. Vervolgens woonde en werkte hij enkele jaren in Londen. Aansluitend was hij een van de eerste vier leden van het Jonge Architecten Atelier; zij initieerden in 1993 ook de Jonge Architecten Prijs. Sinds 1996 werken de atelierleden samen in M3H > Architecten. In 2003 stapte Hammink over naar de Architekten > Cie., waar hij als senior architect werkt aan complexe opgaven in binnen- en buitenland.

Sander Woertman
Sander Woertman > (1975) heeft door zijn studies architectuurgeschiedenis en bouwkunde een zwak voor alles wat met ontwerpen te maken heeft. Zowel het fysieke resultaat als het professionele en creatieve proces wat daaraan voorafgaat belicht hij in zijn werk als redacteur bij > de Architect. Daar schrijft hij zowel voor het tijdschrift als voor de website. Met enige regelmaat > blogt hij over design en architectuur.
Last but not least is hij mede-oprichter van > www.bouwaandeel.nl, een nieuw platform voor het financieren van bouwprojecten door middel van crowdfunding.


Tijdschema
Definitief:
- Bekendmaking opgave 1e ronde en start inschrijving > 14 juli 2014
- Sluitingsdatum vragenronde > 08 augustus 2014
- Sluitingsdatum inschrijving 1e ronde > 08 september 2014
- Sluitingsdatum inzendingen 1e ronde > 08 september 2014
(< 12.00 uur = middaguur)

- Expositie en prijsuitreiking 1e ronde > 17 oktober 2014
- Bekendmaking opgave 2e ronde > 21 oktober 2014
- Sluitingsdatum inschrijving 2e ronde > 24 november 2014
- Sluitingsdatum inzendingen 2e ronde > 24 november 2014
(< 12.00 uur = middaguur)
Nu nog voorlopig:
- Expositie en prijsuitreiking 2e ronde & JA Prijs 2014 > 19 december 2014

Steun aan de JA Prijs 2014 - sponsoring staat voor u open
We zoeken nog sponsors voor delen van de prijsvraag organisatie:
- Wij bieden u de mogelijkheid om de naam van uw product, dienst of bedrijf te verbinden aan bijvoorbeeld prijzen en/of exposities,
- Vervolgens is het mogelijk uw naam te verbinden aan de website en/of de nadere publiciteit rond de prijs,
- Ook kunt u hier via banners reclame maken voor uw product, bedrijf of dienst.

Bel of mail ons voor nadere informatie
Wij bieden u zo in ieder geval nieuwe mogelijkheden om op ontspannen wijze en sneller dan gebruikelijk in contact te komen met de toekomstige (hoofdrol)spelers in de Nederlandse architectenbranche! Vraag hier > per mail om nadere informatie betreffende bovengenoemde mogelijkheden of bel ons kantoor via 070-5112740.

ArchitectenWerk - Kees van der Hoeven, mail direct > info(at)architectenwerk.nl.
Vormgeving logo > Roald Triebels - Amsterdam


2014 © > ArchitectenWerk - P.O. Box 2129 - NL 2240 CC Wassenaar