Algemeen . Wacht . V&W1 . V&W2 . V&W3 . Delft . Roermond1 . Roermond2 . Kubus
Ministerie van Verkeer & Waterstaat (1) . . .
. . .

Concentratie van de verspreide onderdelen van het ministerie was gewenst:
er bleek nieuwbouw nodig van ongeveer 11.000 m2 bruto.
Architectonisch waren de uitgangspunten voor het ontwerp: respect voor het bestaande gebouw van architect Roosenburg (het voormalige KLM-gebouw) en zorgvuldige inpassing in het bijzondere duinlandschap.
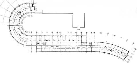
Deze uitgangspunten resulteerden in een uit twee (ten opzichte van elkaar verschoven) gekromde kantoorstroken samengesteld gebouw. Deze stroken ontmoeten elkaar boven de Kwekerijvaart in een middengebied met een vide over drie etages.

Om het omliggende landschap zoveel mogelijk beleefbaar te houden, is de begane grond grotendeels open gehouden; de belangrijkste kantoorvloeren bevinden zich op de etages. Onder het gebouw zijn deels in twee lagen parkeerplaatsen gerealiseerd. Deze en de resterende delen van het omliggende landschap zijn vormgegeven en ingericht naar een ontwerp van landschapsarchitect Jan Boon.
Vanaf het D.O. is aan het plan meegewerkt door Ir Karel Rosdorff BNA.



Het gevelbeeld is horizontaal van karakter tegenover de verticaliteit van het bestaande gebouw. De beide stroken zijn verschillend behandeld: de een met gladde gevelpanelen en ingebouwde zonwering, de ander met toegevoegde zonwering en glazenwasmogelijkheid.
De opbouw in kleinere abstracte vormen, zoals vierkante ramen en panelen en rechthoekige zonweringsroosters, geeft door het grote aantal gelijke elementen de mogelijkheid om het gebouw steeds als één geheel te ervaren.
(foto's P&G Morisson Den Haag)


Voor info is Kavánder' Architectenbureau BNA b.v. snel bereikbaar per E-mail.
Algemeen . Wacht . V&W1 . V&W2 . V&W3 . Delft . Roermond1 . Roermond2 . Kubus

Hoofdindex . Tekstindex . Index Architecten . Architecten Nederland . E-mail
ArchitectenWerk . . .
. . .
. . 068